
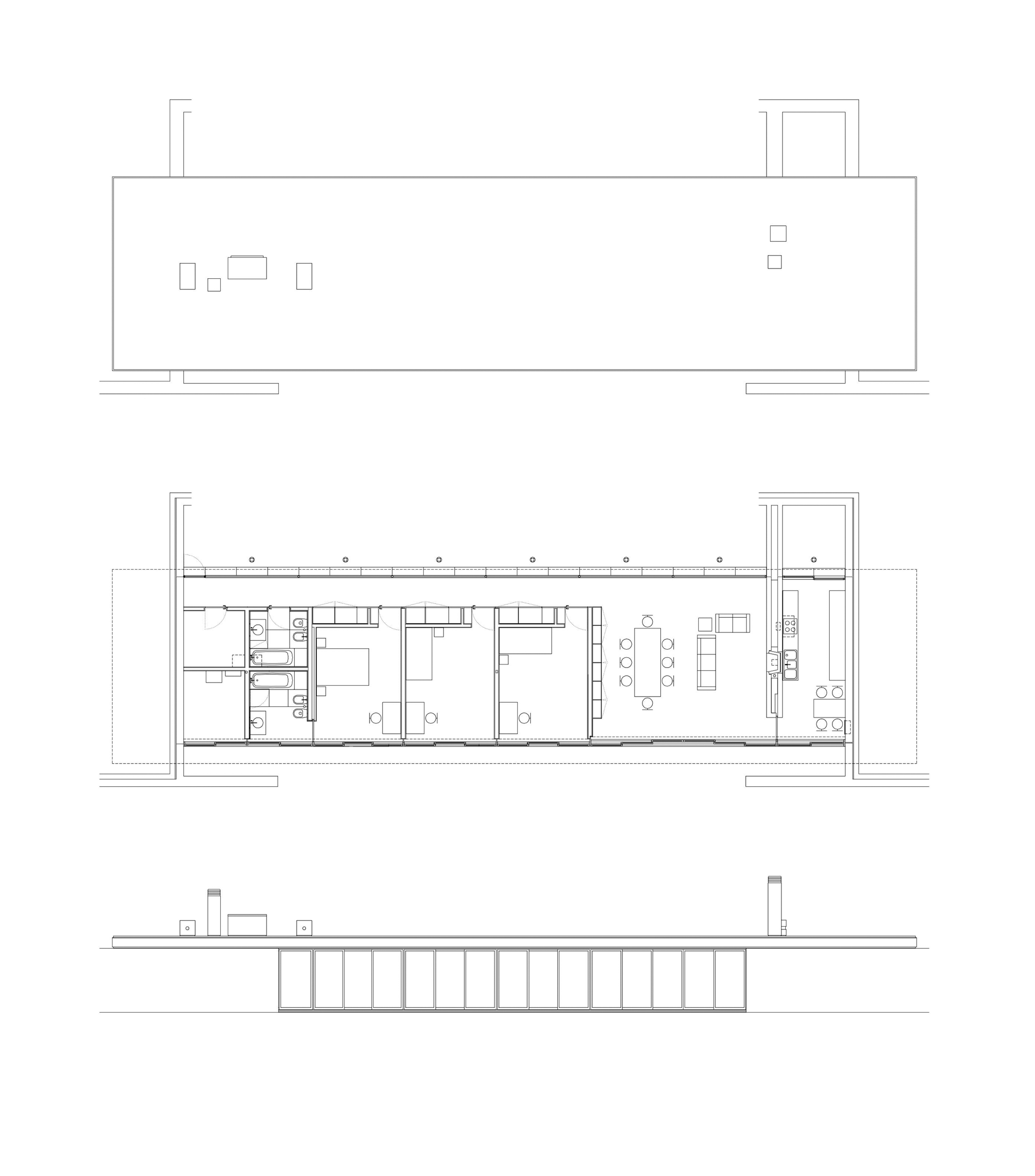
House in Moledo (1998) by Souto de Moura is a beautiful house camouflaged into the hillside at Moledo Do Minho, Caminha, Portugal. Souto De Moura blurs the distinction between interior and exterior with this open concept house with a different hillside view on either side of the house. Through using natural stone, wood and concrete, he mimics the exterior landscape creating a tranquil atmosphere for one visiting the house. The back corridor is a vital part of the work, as materiality and landscape work together to form an identity of its own, overlooking interior and exterior spaces as a whole.